落ち着いた色味の乱形石が印象に残る新築シンプル オープン外構
プラン内容 No.2127
※データは見積当時のものです
- 見積参考価格
- 378 万円
- 工事面積
- 144m 2
- 工事種別
- 新築外構
- 方位
- 西
- 車の台数
- 3台以上
- 登録日
- 2023-06-23
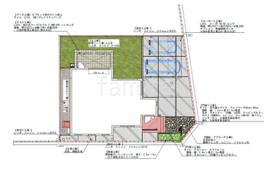
イメージパース・図面







コメント
タイル門柱には名古屋モザイク アルドワーズを採用。宅配ボックスを備え付けており、ご不在時でも配達物を受け取る事が出来ます。門袖にはタカショー セラウォールを使い、RC杉板調の大判タイルで植栽に調和します。アプローチは落ち着いた色味の乱形石張りにし、外構の印象を強めています。







