工夫して予算内に オープン外構
プラン内容 No.2057
※データは見積当時のものです
- 見積参考価格
- 220 万円
- 工事面積
- 102m 2
- 工事種別
- 新築外構
- 地形
- 四角
- 方位
- 北
- 車の台数
- 3台以上
- 登録日
- 2023-11-26
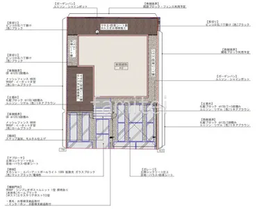
イメージパース・図面








コメント
駐車場はタイヤが乗る部分だけコンクリートを敷き、門柱は安いのにそう見えないYKKのシンプレオをチョイス。 YKKのカーポート エフルージュツインはフラット屋根なので、モダンな外構を引き立てくれます。熱線遮断のアースブルー色の屋根は、真夏の直射熱からカーポートを守り、車内温度の上昇を抑えられます。 玄関階段はタイルではなくモルタルで仕上げて、近くにタカショーのエバーアートポールライトを設置し、夜間でも安心して歩けるようにしました。電球部分がガラスブロックなので、日中は太陽の光を反射させてきらりと輝きます。 カーポート柱に取り付けたスポットライトと門柱の表札灯は、玄関スイッチでオンオフを切り替えることで、電気代と明るさセンサ器具代の節約になりました。 土留めの化粧ブロック リゲルは、普通ブロックにはないデザイン性と柔らかな表情で、シンプルな階段によく合います。 境界には普通ブロックとメッシュフェンスを使用しすることで、費用を抑えながら防犯面を強化しました。 お庭の2か所にはマサ土と防草シートを敷き、支給した人工芝をお客様が敷くことで、施工費を安くできます。 機能的でスタイリッシュですが、実はそんなに費用がかかっていない、コスパ抜群の外構になりました。








