コスパ良し シンプルなクローズ外構
プラン内容 No.2056
※データは見積当時のものです
- 見積参考価格
- 201 万円
- 工事面積
- 155m 2
- 工事種別
- リフォーム外構
- 地形
- 四角
- 方位
- 西
- 車の台数
- 3台以上
- 登録日
- 2023-11-26
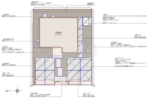
イメージパース・図面









コメント
門柱とアプローチ、伸縮門扉のみ先に施工されていて、今回は費用を抑えながら利便性の良い外構にされたいとのご希望でした。 駐車場は、車の駐車がしやすく歩きやすいように一面土間コンクリートを敷き、自家用車を置く方にはYKKのアリュースワイドを設置しました。熱線遮断の屋根にすることで、夏場の暑さが軽減されます。 駐車場から物置までの犬走りにはコンクリートを敷き、カートや自転車のタイヤを転がして運べるようにしています。 全体にバラスが敷かれていましたが、それを一旦撤去し、今後雑草の根に困らないよう防草シートを敷いてから再度バラスを敷きました。 必要な部分はきちんと整えつつ、装飾を省くなど工夫したことで、予算内におさめることができました。









