おしゃれで機能的なリフォームシンプル オープン外構
プラン内容 No.2025
※データは見積当時のものです
- 見積参考価格
- 163 万円
- 工事面積
- 88m 2
- 工事種別
- リフォーム外構
- 地形
- 変形
- 方位
- 南西
- 車の台数
- 2台
- 登録日
- 2023-04-29
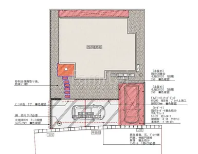
イメージパース・図面






コメント
門柱のタイルはLIXIL細割ボーダー。陰影感が際立つタイルで、テーパーを取った割肌が独特のデザインを生み出します。駐車場スペースにはカーポートYKKAPアリュース1台用を設置。高品質で耐久性のある屋根で、車を雨風から保護します。目隠しフェンスF&FマイティウッドデコIIはリアルな木目調がナチュラルで、優しい空間を作り出します。






