0120-482-488 10:00~18:00 水・木 定休日
※データは見積当時のものです
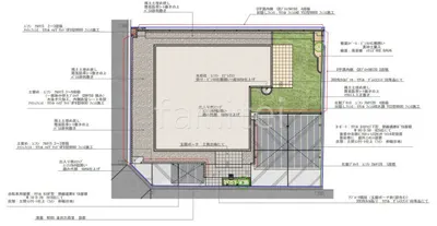
タイル門柱 玄関アプローチ階段 床タイル貼り サイクルポート カーポート2台(ワイド) 駐車場ガレージ床 土間コンクリート 土留め 化粧ブロック積 境界フェンス塀 お庭 人工芝防草シート加工 タイルデッキ ピンコロ石花壇 目隠しフェンス塀
立面図
平面図
見積
施工前