高級感あふれる門まわりが印象的な新築シンプル オープン外構
プラン内容 No.1904
※データは見積当時のものです
- 見積参考価格
- 329 万円
- 工事面積
- 117m 2
- 工事種別
- 新築外構
- 地形
- 四角
- 方位
- 北
- 車の台数
- 2台
- 登録日
- 2022-09-02
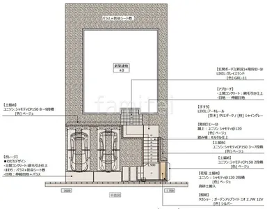
イメージパース・図面





コメント
玄関アプローチ階段は土間コンクリート 伸縮目地で施工。刷毛引き仕上げのため滑りにくく安全性を確保しています。門柱は壁タイル張りで、東洋石創のシャドウを使用し高級感を演出しています。化粧ブロック花壇はユニソンのシャモティを使用し、自然な風合いを持たせています。手摺はLIXIL アーキレールで施工し、デザイン性と安全性を兼ね備えています。玄関ポーチは床タイル張りで、LIXILのグレイスランドを使用。上品な雰囲気を醸し出しています。駐車場ガレージ床は轍(わだち)型土間コンクリートでバラスを使用し、耐久性とデザイン性を確保しています。土留めに化粧ブロック ユニソンのシャモティを使用し、自然な風合いを持たせています。境界フェンス塀はYKKAPのイーネットフェンス3F型を採用し、プライバシーと安全性を確保しています。





