お気に入り
メニュー
0120-482-488
10:00~18:00 水・木 定休日
お問い合せ
単価一覧
お気に入り
ファミリー庭園とは
施工例
プラン事例
お客様の声
店舗一覧
工事の流れ
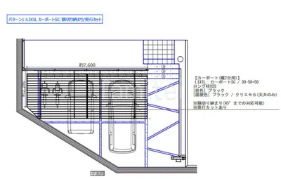
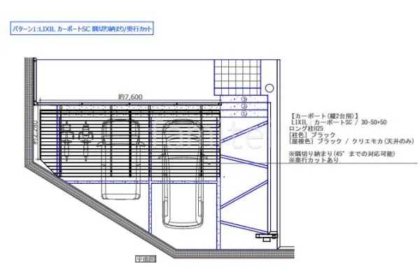
カーポート縦2台
プラン内容
No.1891
※データは見積当時のものです
見積参考価格
119
万円
工事種別
リフォーム外構
登録日
2022-09-05
イメージパース・図面
1/5
2/5
カーポート2台(縦) 奥行カット 斜めカット
3/5
平面図
4/5
見積
5/5
施工前
このプランの分類
車庫まわり
カーポートタテ2台
このプランについて問い合わせる