タイルと石の組み合わせで魅せるアプローチリフォーム
プラン内容 No.1831
※データは見積当時のものです
- 見積参考価格
- 406 万円
- 工事面積
- 200m 2
- 工事種別
- リフォーム外構
- 地形
- 四角
- 車の台数
- 3台以上
- 登録日
- 2022-09-27
イメージパース・図面





コメント
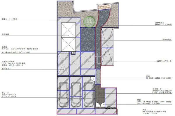
門柱には、ニッタイのロークを使用しています。ダイナミックな天然石模様を再現したタイルです。母屋までの玄関アプローチの床にグレイスランドで施工し落ち着いた雰囲気を演出しています。奥側のアプローチは、乱形石を敷き詰めて、ピンコロ石で縁取りしています。自然な風合いで個性的な印象を与えています。駐車場ガレージ床は土間コンクリート バラス目地を施工しました。目隠しフェンス塀 LIXILのAB YS3型を施工。プライバシーを守るだけでなく、防音効果もあります。既存の物置前に、サイクルポート ネスカFと立水栓 スプレスタンド60を設置しました。立水栓 スプレスタンド60は、水やりや洗車などに便利です。





