利便性を兼ね備えた新築ベーシック オープン外構
プラン内容 No.1728
※データは見積当時のものです
- 見積参考価格
- 83 万円
- 工事面積
- 52m 2
- 工事種別
- 新築外構
- 地形
- 四角
- 方位
- 西
- 車の台数
- 2台
- 登録日
- 2023-02-28
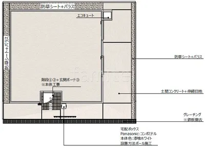
イメージパース・図面






コメント
玄関前の目隠しフェンスを右にずらすことでご自宅や郵便ポストへのアクセスがしやすくなると共に、外からの視線を遮れるように。また機能門柱横に土間コンクリートを施工することで自転車なども駐輪できるなど利便性を考えつつシンプルにまとめました。






