お気に入り
メニュー
0120-482-488
10:00~18:00 水・木 定休日
お問い合せ
単価一覧
お気に入り
ファミリー庭園とは
施工例
プラン事例
お客様の声
店舗一覧
工事の流れ
プラン詳細
プラン内容
No.1551
※データは見積当時のものです
見積参考価格
184
万円
工事面積
81m
2
工事種別
リフォーム外構
地形
四角
車の台数
1台
登録日
2014-10-10
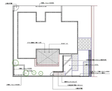
イメージパース・図面
1/6
リフォーム外構
2/6
3/6
4/6
平面図
5/6
工事別 参考価格
6/6
リフォーム施工前イメージ
このプランの分類
庭まわり
ナチュラル
このプランについて問い合わせる