お気に入り
メニュー
0120-482-488
10:00~18:00 水・木 定休日
お問い合せ
単価一覧
お気に入り
ファミリー庭園とは
施工例
プラン事例
お客様の声
店舗一覧
工事の流れ
プラン詳細
プラン内容
No.1440
※データは見積当時のものです
見積参考価格
237
万円
工事面積
245m
2
工事種別
新築外構
地形
角地
車の台数
2台
登録日
2014-11-30
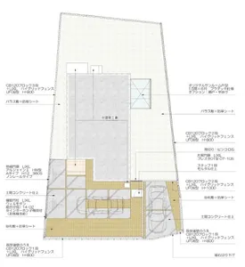
イメージパース・図面
1/4
クローズ外構
2/4
3/4
平面図
4/4
工事別 参考価格
このプランの分類
クローズ
ベーシック
このプランについて問い合わせる