お気に入り
メニュー
0120-482-488
10:00~18:00 水・木 定休日
お問い合せ
単価一覧
お気に入り
ファミリー庭園とは
施工例
プラン事例
お客様の声
店舗一覧
工事の流れ
プラン詳細
プラン内容
No.1087
※データは見積当時のものです
見積参考価格
95
万円
工事面積
85m
2
工事種別
新築外構
地形
四角
車の台数
1台
登録日
2012-11-03
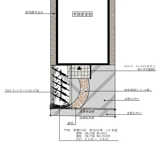
イメージパース・図面
1/4
南欧風オープン外構
2/4
3/4
平面図
4/4
詳細見積
このプランの分類
オープン
ナチュラル
このプランについて問い合わせる