タイルと平板のアプローチが上品な新築シンプル セミクローズ外構
プラン内容 No.2981
※データは見積当時のものです
- 見積参考価格
- 286 万円
- 工事面積
- 107m 2
- 工事種別
- 新築外構
- 地形
- 角地
- 方位
- 南西
- 車の台数
- 3台以上
- 登録日
- 2025-04-12
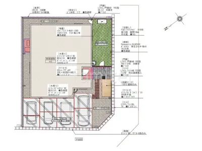
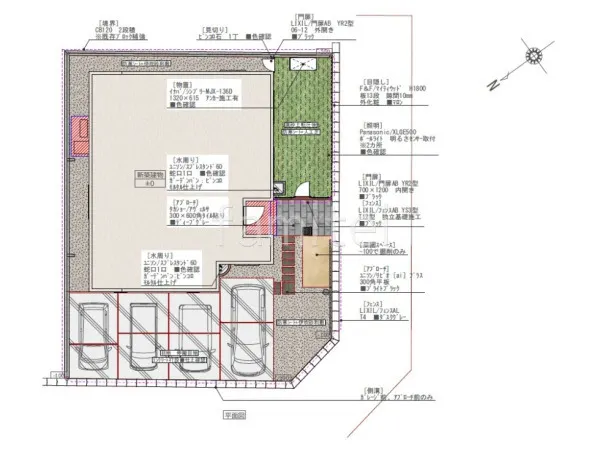
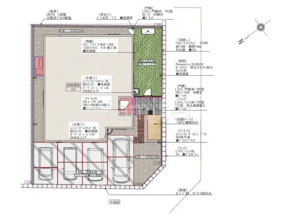
イメージパース・図面








コメント
大判タイル タカショー アヴェルサと平板 ユニソン リビオプラスを使用したアプローチは、上品で歩きやすい動線を演出します。 門柱は便利な宅配ボックス付き機能門柱 LIXIL 木製調FFは、ナチュラルな印象の外観でエントランスを彩ります。 お庭にはお手入れが簡単な人工芝を敷き、目隠しフェンス F&F マイティウッドデコllとLIXIL AB YS3型でプライバシーを確保しながら温もりある空間に仕上げました。 さらに、片開き門扉 LIXIL AB YR2型を設置し、防犯性をアップしました。








