ブラックのカーポートがかっこいい新築シンプル オープン外構
プラン内容 No.2875
※データは見積当時のものです
- 見積参考価格
- 285 万円
- 工事面積
- 90m 2
- 工事種別
- 新築外構
- 地形
- 四角
- 方位
- 北
- 車の台数
- 2台
- 登録日
- 2025-03-23
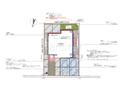
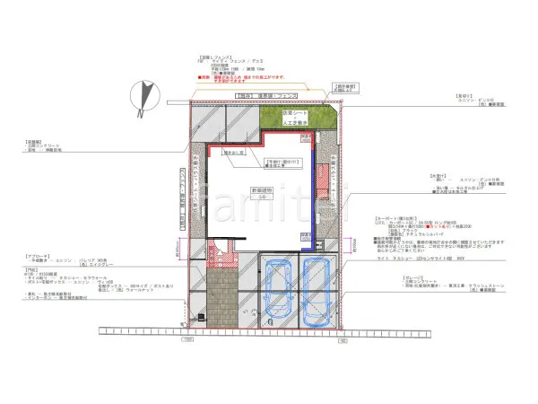
イメージパース・図面






コメント
駐車スペースに2台用カーポート LIXIL カーポートSCを設置し、直線的で洗練されたデザインで車を雨風から保護します。 門柱には大判タイル タカショー セラウォールを使用し、高級感をプラスします。 アプローチには平板 ユニソン バレリアを敷き、落ち着いた色合いと滑らかな質感で上品な仕上がりに。 お庭には人工芝を敷き、目隠しフェンス F&F マイティウッドデコllを建てることでプライバシーを確保しつつ、快適で心地よいお庭空間を作りました。






