目隠しフェンスでプライバシーを保護する外構リフォーム
プラン内容 No.2784
※データは見積当時のものです
- 見積参考価格
- 217 万円
- 工事種別
- リフォーム外構
- 登録日
- 2024-12-09
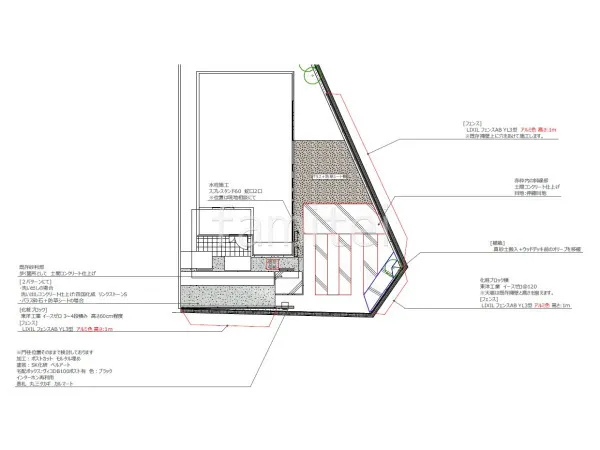
イメージパース・図面








コメント
境界まわりに化粧ブロック 東洋工業 トーヨーイース ゼロと目隠しフェンス LIXIL AB YL3型を設置することで、プライバシーをしっかりと保護します。 駐車スペースには土間コンクリートを使用し、耐久性を確保。 さらに、アプローチ部分には洗出し仕上げを採用し、滑らかな質感と自然な雰囲気を演出しています。








