乱形石とカーポートがモダンな新築ハイクラス オープン外構
プラン内容 No.2729
※データは見積当時のものです
- 見積参考価格
- 851 万円
- 工事面積
- 171m 2
- 工事種別
- 新築外構
- 地形
- 変形
- 車の台数
- 2台
- 登録日
- 2024-12-27
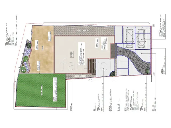
イメージパース・図面










コメント
駐車スペースに2台用カーポート LIXIL カーポートSC 後方支持柱を設置し、広々とした駐車場を確保しつつ、スタイリッシュなデザインで車を保護します。 また、アプローチは黒の乱形石を使用し、曲線のデザインで魅力的でエレガントな印象をプラスしました。 エントランスには大判タイル タカショー セラレバンテのタイル門柱を設置し、高級感を加えました。 お庭には目隠しフェンス F&F マイティウッドデコllとウッドデッキ LIXIL 樹ら楽ステージを設置し、プライバシーと快適な憩いの場を作りました。 さらに、メンテナンスフリーな人工芝を敷いて1年中緑を楽しめる空間に仕上げました。










