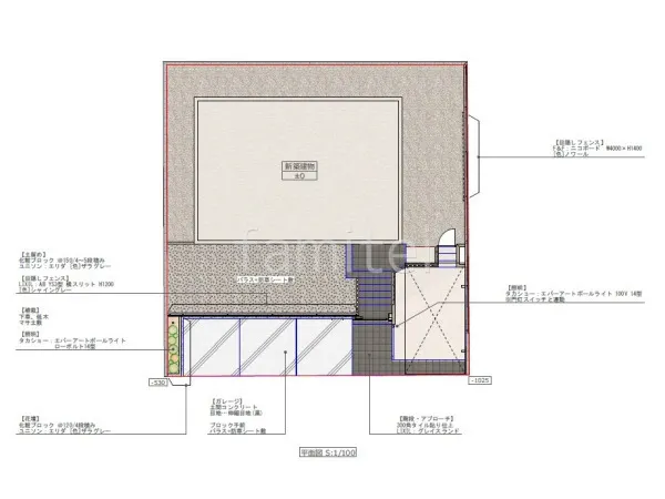
お庭の一部を解体して駐車場を広げた外構リフォーム
プラン内容 No.2701
※データは見積当時のものです
- 見積参考価格
- 228 万円
- 工事種別
- リフォーム外構
- 登録日
- 2024-11-17
イメージパース・図面







コメント
お庭の一部を解体し、土間コンクリートで仕上げることで、駐車場を拡張しました。 広々としたスペースを確保することで、使い勝手の良さが向上しました。 また、目隠しフェンス LIXIL AB YS3型を設置することで、お庭スペースのプライバシーをしっかりと保護します。 そして、門扉をスライド門扉 LIXIL アーキスライドA型にやり替え、スムーズな動線を確保しました。







