大きなカーポートと広いタイルデッキの新築ハイクラス セミクローズ外構
プラン内容 No.2683
※データは見積当時のものです
- 見積参考価格
- 2445 万円
- 工事面積
- 548m 2
- 工事種別
- 新築外構
- 地形
- 四角
- 車の台数
- 3台以上
- 登録日
- 2024-11-24
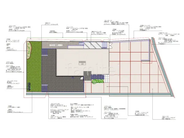
イメージパース・図面











コメント
駐車スペースに4台用カーポート 四国化成 マイポートnextを設置し、スタイリッシュな外観で車を雨風や日差しからしっかり守ります。 お庭には300角タイル LIXIL グレイスランドを使用した広いタイルデッキを新設し、デッキ上にテラス屋根 YKKAP ソラリアFを設置することでリラックスできる空間を作りました。 また、人工芝でお庭を彩り、お手入れが簡単で1年中美しい緑を楽しむことができます。 敷地境界には目隠しフェンス LIXIL 木製調AB YS3-K型やYKKAP シンプレオFP1型の多段タイプを設置して周囲からの視線を遮ります。











