ロックガーデンとタイルデッキが美しい新築ハイクラス オープン外構
プラン内容 No.2646
※データは見積当時のものです
- 見積参考価格
- 630 万円
- 工事面積
- 151m 2
- 工事種別
- 新築外構
- 地形
- 四角
- 方位
- 北
- 車の台数
- 2台
- 登録日
- 2024-10-21
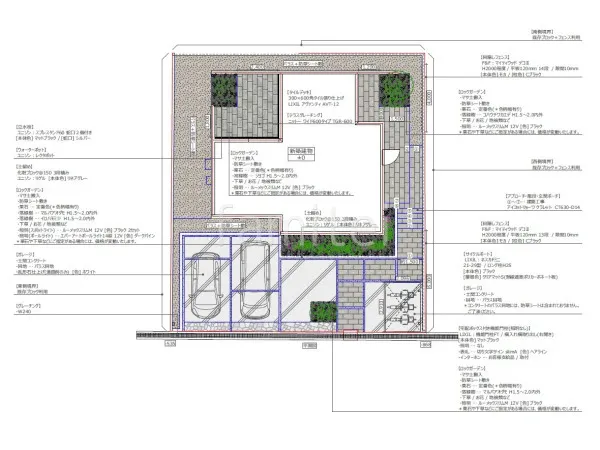
イメージパース・図面







コメント
お庭スペースには大判タイル LIXIL アヴァンティを使用したタイルデッキを新設し、リラックスできる空間にしました。 また目隠しフェンス F&F マイティウッドデコllを設置することで自然な木目で温かみがありつつ、プライバシーをしっかりと確保します。 門柱は宅配ボックス付きで便利な機能門柱 LIXIL FTを採用し、デザイン性と利便性を兼ね備えた、スマートなエントランスに仕上げました。 さらに、各所にロックガーデンスペースを作り、庭に自然のアクセントを加え、美しい景観に仕上げました。







