スタイリッシュなカーポートで新築シンプル セミクローズ外構
プラン内容 No.2553
※データは見積当時のものです
- 見積参考価格
- 390 万円
- 工事面積
- 86m 2
- 工事種別
- 新築外構
- 地形
- 四角
- 方位
- 北東
- 車の台数
- 2台
- 登録日
- 2024-07-07
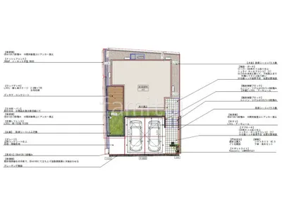
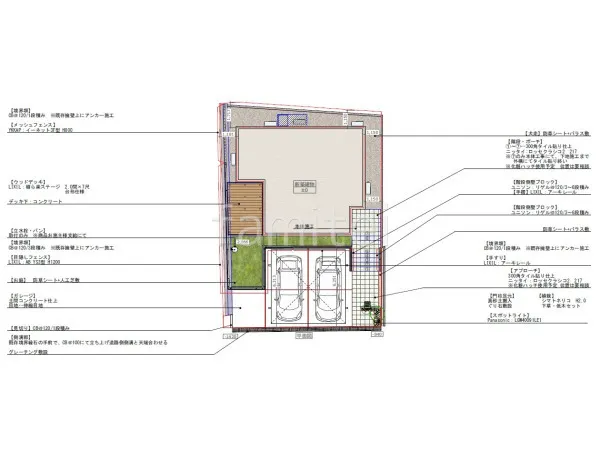
イメージパース・図面







コメント
駐車場に2台用カーポート LIXIL カーポートSCを設置し、スタイリッシュで高級感のあるデザインが特徴で、駐車スペースをモダンな印象に仕上げます。 お庭にはメンテナンスフリーな人工芝を敷き、ウッドデッキ LIXIL 樹ら楽ステージを設置して緑と木目の温もりが調和した快適なお庭空間を作りました。 更に、お庭周りには目隠しフェンス LIXIL AB YS3型を設置してプライバシー保護もばっちりです。 門柱には大判タイル タカショー セラレバンテを使用して重厚感のあるデザインに仕上げました。







