カーポートと手すりで新築ベーシック セミクローズ外構
プラン内容 No.2546
※データは見積当時のものです
- 見積参考価格
- 512 万円
- 工事面積
- 117m 2
- 工事種別
- 新築外構
- 地形
- 角地
- 方位
- 南
- 車の台数
- 2台
- 登録日
- 2024-07-13
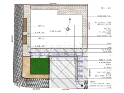
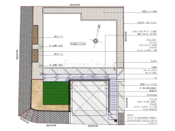
イメージパース・図面




コメント
駐車場に横2台用カーポート LIXIL カーポートSCを設置し、スタイリッシュなデザインでありながら車を雨風からしっかりと守ります。 階段には手すり LIXIL グリップラインを設置してどなたでも安全に階段を利用できるようにしました。 家の前には目隠しフェンス LIXIL AB YL1型を建て、プライバシーを確保します。 ポストには宅配ボックスと一体化しているユニソン ヴィコDB 100を採用し、利便性の高い門まわりにしました。




