人工芝とタイルでお庭リフォーム
プラン内容 No.2480
※データは見積当時のものです
- 見積参考価格
- 62 万円
- 工事種別
- リフォーム外構
- 登録日
- 2024-05-07
イメージパース・図面






コメント
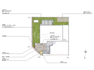
お庭に敷かれていた既存砂利を撤去し、人工芝と300角タイル LIXIL グレイスランドを敷いてメンテナンスフリーなお庭に仕上げました。 人工芝の下には防草シートを敷いているため、雑草対策もバッチリです。 またお庭の一角に花壇を新設して、季節ごとの植物を楽しめるスペースも作りました。
※データは見積当時のものです






お庭に敷かれていた既存砂利を撤去し、人工芝と300角タイル LIXIL グレイスランドを敷いてメンテナンスフリーなお庭に仕上げました。 人工芝の下には防草シートを敷いているため、雑草対策もバッチリです。 またお庭の一角に花壇を新設して、季節ごとの植物を楽しめるスペースも作りました。