白と黒を基調にしたモダンな新築ハイクラス クローズ外構
プラン内容 No.2110
※データは見積当時のものです
- 見積参考価格
- 1228 万円
- 工事面積
- 163m 2
- 工事種別
- 新築外構
- 地形
- 角地
- 方位
- 南
- 車の台数
- 2台
- 登録日
- 2023-05-16
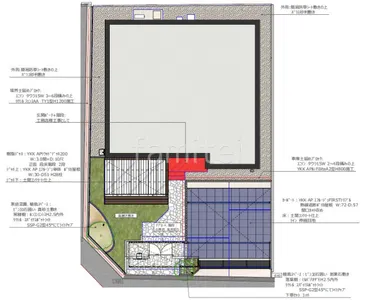
イメージパース・図面










コメント
タイル門柱にはニッタイ ロークを使用。白い石目調の大判タイルが清潔感を醸し出します。玄関アプローチにも白い乱形石を敷き、一体感のある玄関まわりに仕上げています。門柱の付近にテラス屋根 Gルーフ フリータイプを取付することで、雨の日でも郵便物を受け取りやすくなっています。シャッターガレージには黒色を使うことで、全体的に高級感ある外構になりました。










