石目の大判タイル門柱が印象的な新築シンプル オープン外構
プラン内容 No.1811
※データは見積当時のものです
- 見積参考価格
- 274 万円
- 工事面積
- 126m 2
- 工事種別
- 新築外構
- 地形
- 四角
- 方位
- 北
- 車の台数
- 2台
- 登録日
- 2022-11-07
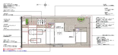
イメージパース・図面






コメント
門柱のタイルは東洋石創 シャドウ。大判でダイナミックな印象になります。玄関アプローチにはグリーン系の乱形石を貼り、ナチュラルながらも都会的なイメージに。勝手口にはテラス屋根 YKKAP ソラリアFと目隠しフェンス F&F マイティウッドベーシックを設置し、ゴミを一時的に置いておいたりなど、多用途にお使いいただけます。






