格調のある新築シンプル オープン外構
プラン内容 No.1804
※データは見積当時のものです
- 見積参考価格
- 335 万円
- 工事面積
- 103m 2
- 工事種別
- 新築外構
- 地形
- 四角
- 方位
- 南東
- 車の台数
- 1台
- 登録日
- 2022-10-11
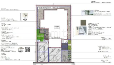
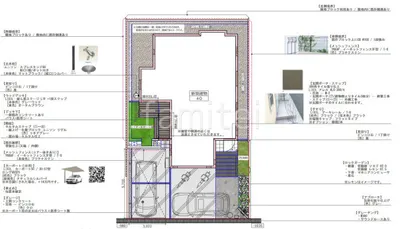
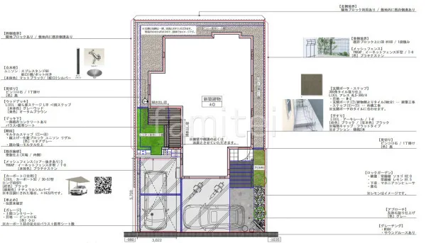
イメージパース・図面






コメント
玄関回りに木目タイルや石貼りなどを使用すると高級感のある門まわりになります。駐車スペースのカーポートに門まわりの雰囲気を崩さないLIXIL カーポートSCを施工しました。お庭のウッドデッキにLIXIL 樹ら楽ステージ をグレーウッド色で施工しました。シックで格調のある新築外構となりました。






