荘重な雰囲気にアクセントが引き立つ新築シンプル オープン外構
プラン内容 No.1729
※データは見積当時のものです
- 見積参考価格
 - 440 万円
 - 工事面積
 - 265m 2
 - 工事種別
 - 新築外構
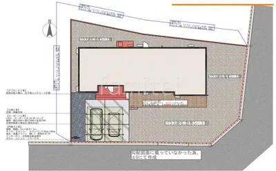
 - 地形
 - 角地
 - 方位
 - 南
 - 車の台数
 - 2台
 - 登録日
 - 2023-02-28
 
イメージパース・図面





コメント
タイル門柱や玄関アプローチの乱形石などの荘重な雰囲気に「カーポートSC」の金属光沢がお互いを引き立たせる外構となります。角地という地形上あえてフェンスなどを施工せず非常に開放感のあるお庭まわりにアクセントになる木製調タイルのタイルデッキを選択しました。





