駐車しやすく広々とした駐車場がポイントの新築シンプル オープン外構
プラン内容 No.1668
※データは見積当時のものです
- 見積参考価格
- 246 万円
- 工事面積
- 168m 2
- 工事種別
- 新築外構
- 地形
- 角地
- 方位
- 南
- 車の台数
- 2台
- 登録日
- 2023-02-10
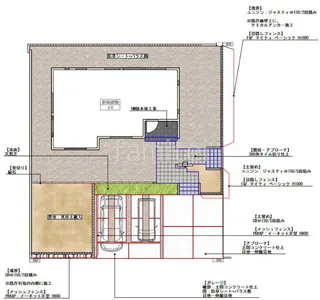
イメージパース・図面






コメント
角地の為、駐車場右側にフェンスやブロック塀、門柱などで人や車の動線を塞がないようにしました。門柱のタイルにはマットな質感で高級感のある東洋石創 シャドウを選択しました。車や人通りの多い右側に視線を遮る木製調フェンス F&F マイティウッド ベーシック を選択しました。フェス下の化粧ブロックには ユニソン ジャスティを施工しています。






