広々とした駐車場の新築シンプル セミクローズ外構
プラン内容 No.1621
※データは見積当時のものです
- 見積参考価格
- 274 万円
- 工事面積
- 162m 2
- 工事種別
- 新築外構
- 地形
- 角地
- 方位
- 西
- 車の台数
- 2台
- 登録日
- 2023-03-14
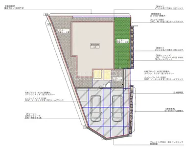
イメージパース・図面






コメント
門柱は化粧ブロック ユニソン エリダを使用。親子両開きの玄関門扉、LIXIL AB TR2型と共に、しっかりと門まわりを守っています。ゆったりした広い駐車場には土間コンクリートを敷き、扱いやすく綺麗な仕上がりに。お庭には人工芝を敷き一年中鮮やかな緑を楽しめます。






