お気に入り
メニュー
0120-482-488
10:00~18:00 水・木 定休日
お問い合せ
単価一覧
お気に入り
ファミリー庭園とは
施工例
プラン事例
お客様の声
店舗一覧
工事の流れ
プラン詳細
プラン内容
No.1275
※データは見積当時のものです
見積参考価格
330
万円
工事面積
390m
2
工事種別
新築外構
地形
四角
車の台数
3台以上
登録日
2015-05-19
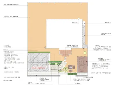
イメージパース・図面
1/6
クローズ外構
2/6
3/6
4/6
5/6
平面図
6/6
工事別 参考価格
このプランの分類
ナチュラル
クローズ
このプランについて問い合わせる